Collège Gisèle Halimi

Type
Équipement public
Lieu
Aubervilliers (93)
Statut
Livraison 2021

Répondant à la volonté du Conseil départemental de la Seine-Saint-Denis de penser les collèges du XXIe siècle, le projet prend place sur une ancienne friche industrielle, dans un tissu urbain dense et contrasté. Il conjugue développement durable, haute technologie et nouveaux modes d’organisation. Sa volumétrie singulière et la richesse des matériaux favorisent son intégration au quartier. Malgré la contrainte d’une parcelle réduite, le programme accueille également un immeuble de logements et un gymnase, ce dernier étant partiellement enterré pour en limiter l’impact visuel.

Client
Conseil départemental de la Seine-Saint-Denis
Programme
Collège 700 + Gymnase
Architecte
Alcyone
Surface
8 000 m²
Budget
16.5 M€
Plans
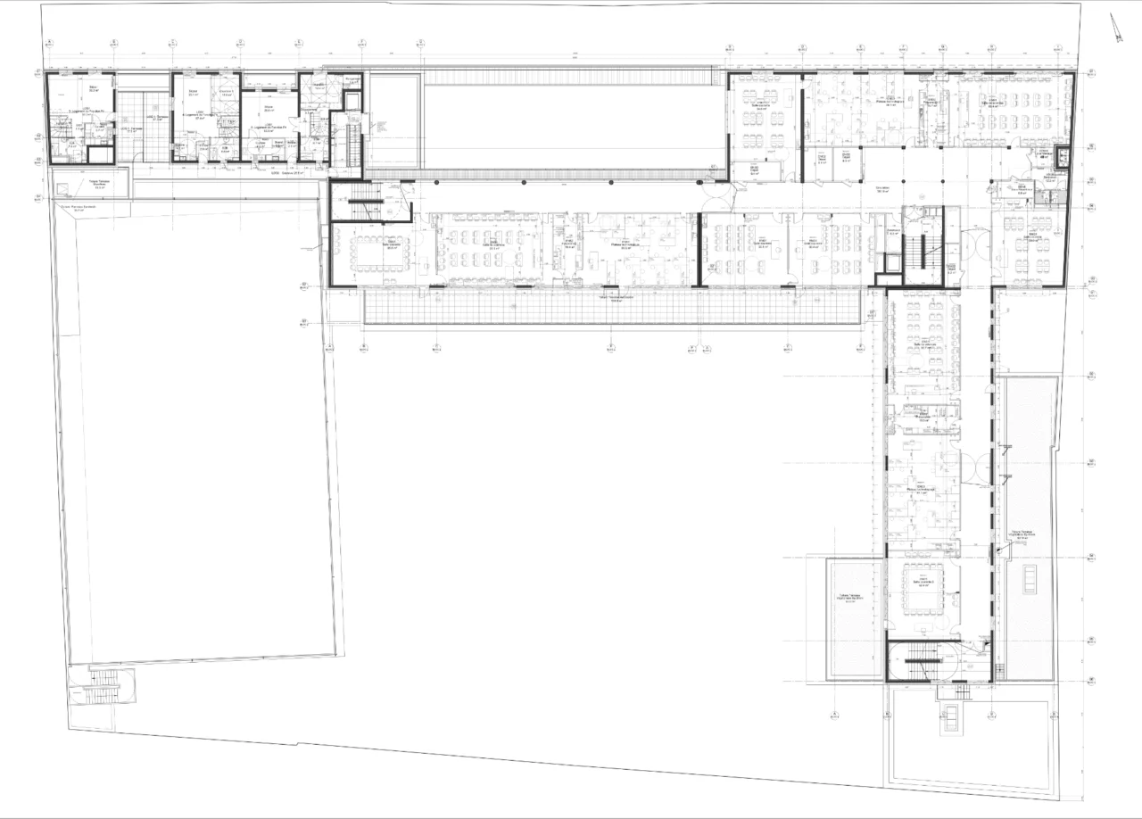
Plan masse
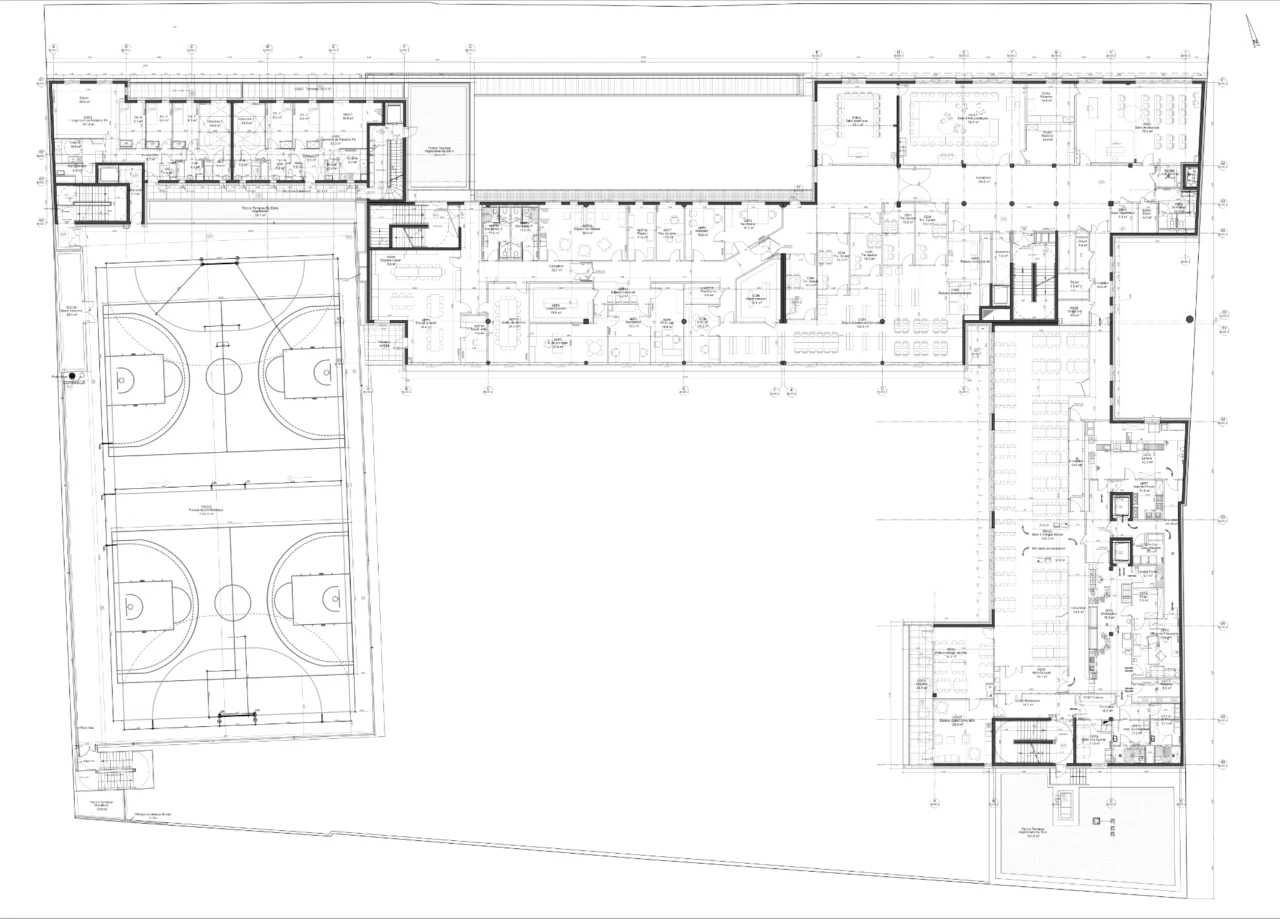
RDC
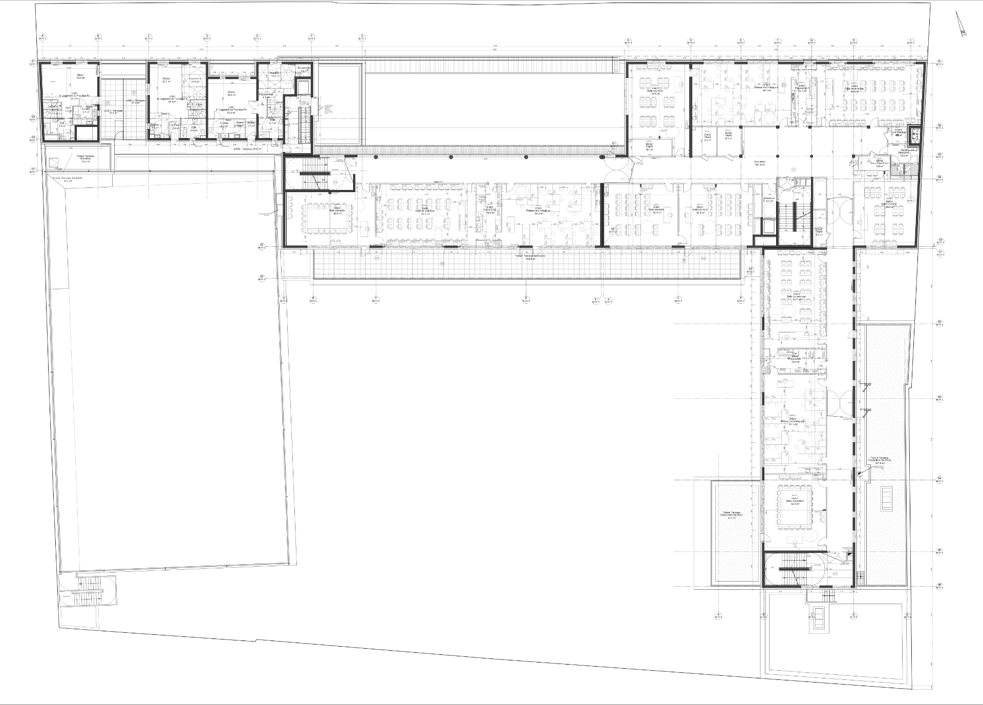
R+1
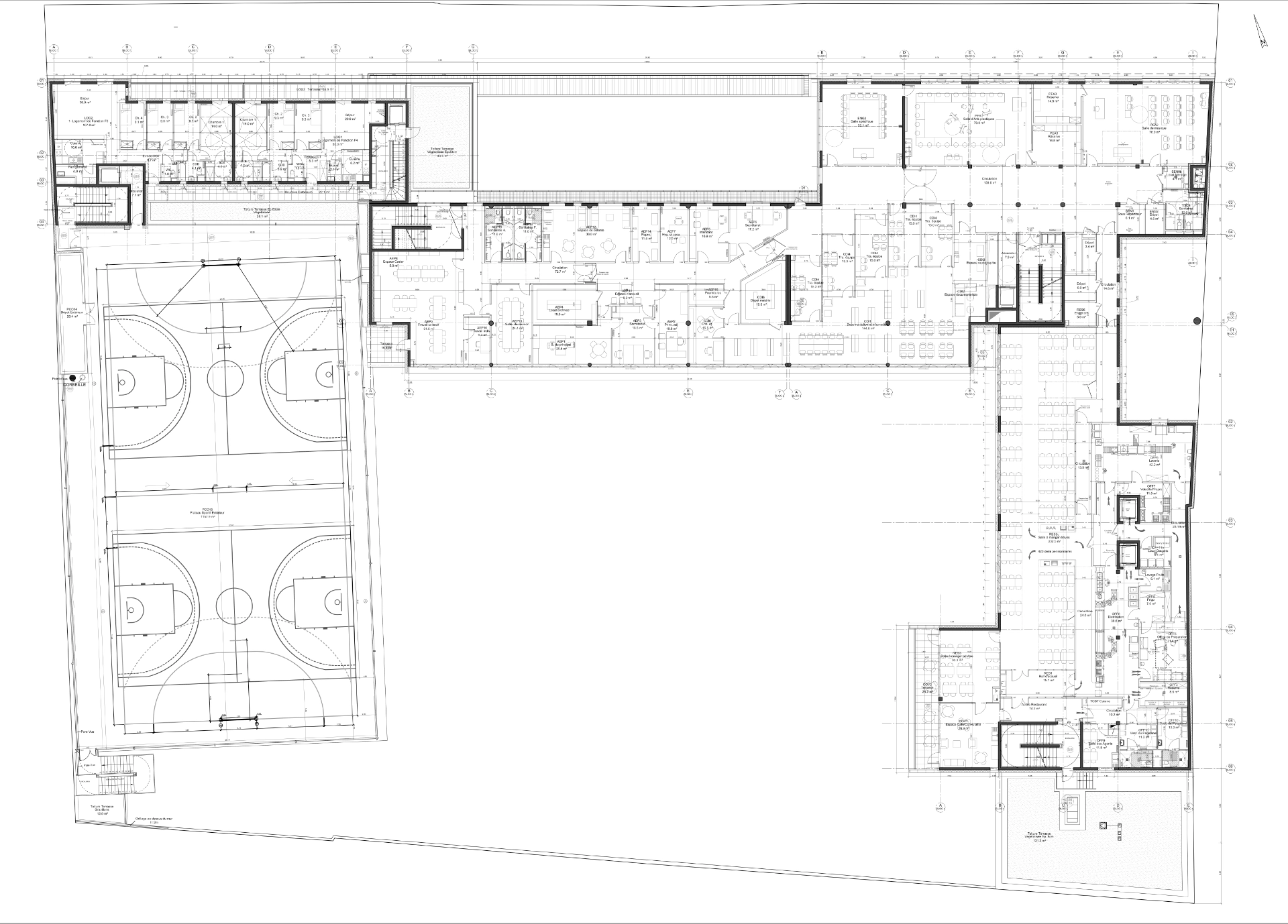
R+2