École maternelle et élémentaire

Type
Équipement public
Lieu
Bonneuil-en-France (95)
Statut
Livraison 2028

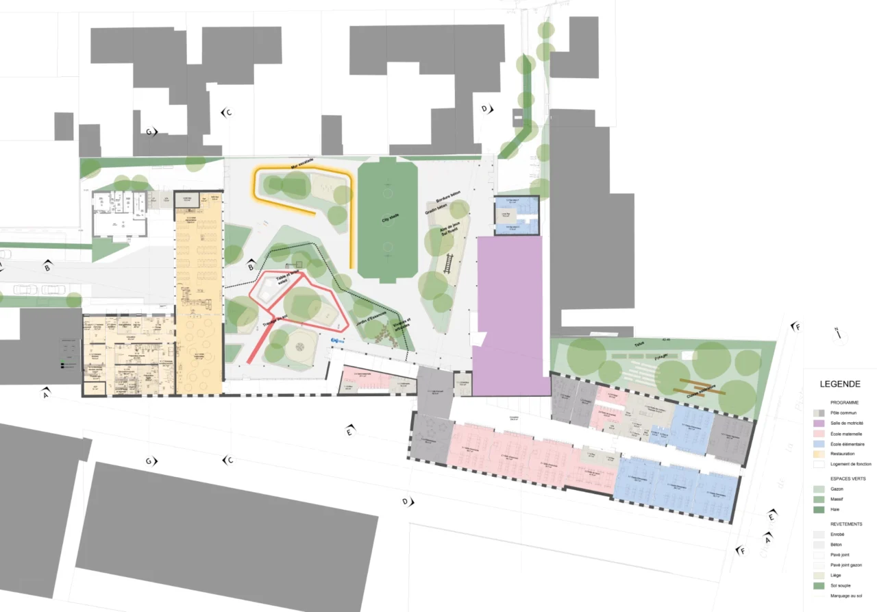
À Bonneuil-en-France, la reconstruction du groupe scolaire s’inscrit dans une dynamique de renouvellement urbain. Inspiré du caractère rural du quartier, le projet vise à reconnecter les éléments disparates d’un établissement construit par phases, en le réintégrant à son îlot urbain et à son environnement immédiat.

Le projet repense l’organisation des fonctions scolaires pour répondre aux usages des prochaines décennies, tout en apportant cohérence et fonctionnalité à un site aujourd’hui enclavé. L’ensemble des bâtiments, existants ou neufs, est réuni sous une toiture unificatrice, réinterprétant l’écriture urbaine locale.

Réalisée en site occupé, sans modules préfabriqués, l’opération porte une forte ambition environnementale, en visant les standards RE2028 et en intégrant des principes de construction durable et de réemploi.

Client
Ville de Bonneuil-en-France
Programme
Réhabilitation et extension
Architecte
Alcyone Architecture - Atelier Malisan
Surface
1 560 m²
Budget
7.5M€
Plans
Plan masse
RDC
Coupes et façades