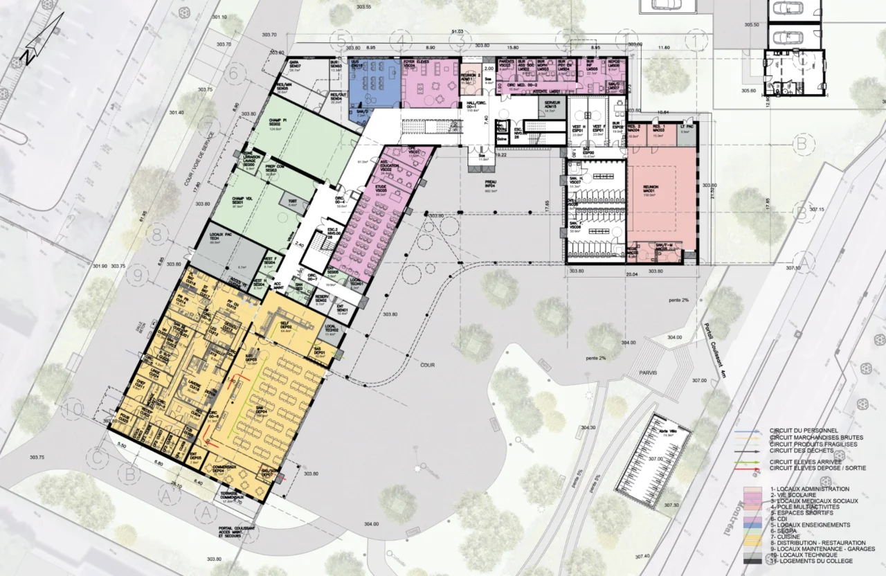
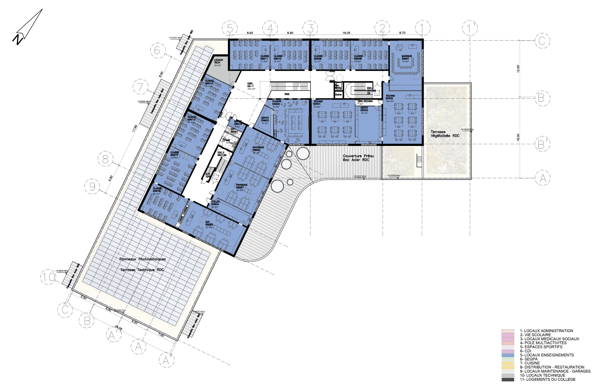
Collège La Carrière

Type
Équipement public
Lieu
Saint-Avold (57)
Statut
Concours 2022

En partenariat avec l’Atelier Malisan, le projet consiste en la construction d’un collège BEPOS sur l’ancien site du lycée professionnel Valentin Metzinger. Ce chantier à fort enjeu économique a nécessité une approche budgétaire fine en amont de toute décision architecturale, avec des objectifs environnementaux ambitieux, bien au-delà des normes en vigueur, et une adaptation à une topographie marquée.

Le bâtiment, compact et rigoureusement conçu, se déploie en strates fonctionnelles : espaces communs en rez-de-chaussée, classes et bureaux à l’étage, salles spécifiques en partie haute. Cette organisation claire, alliée à une volumétrie épurée, confère au projet une élégance discrète et une parfaite intégration au site.

Client
Demathieu&Bard / CD 57 - Moselle
Programme
MGP programme neuf
Architecte
Alcyone
Surface
5 800 m²
Budget
14.5 M€
Plans
Plan masse
Coupe
RDC
R+2