Parc de stationnement P.I.R Montesquieu

Type
Transport & Stationnement
Lieu
Argenteuil (95)
Statut
Livraison 2019

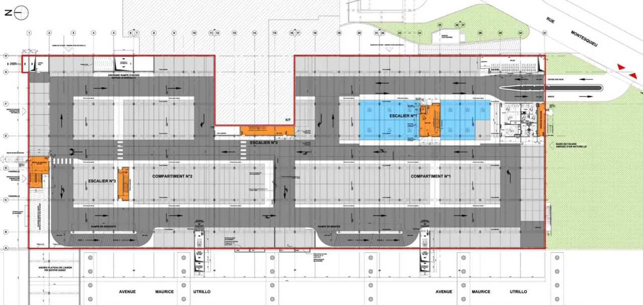
Le parking Montesquieu, anciennement Parking d’Intérêt Régional Val d’Argent Sud, situé à proximité de la gare SNCF de Val d’Argenteuil a fait l’objet d’une profonde transformation.
Après la destruction de son exact réplique élevée de l’autre côté de l’avenue Maurice Utrillo, cette restructuration ambitieuse a permis de transformer un équipement dégradé en un parking moderne et fonctionnel, intégrant les dernières normes d’accessibilité. Les 599 places de stationnement, réparties sur trois niveaux, dont un en sous-terrain et deux en aérien, offrent désormais un confort optimal aux usagers.
Intégré dans un environnement urbain dense, le parking Montesquieu constitue désormais un élément clé de l’aménagement du quartier, contribuant à l’amélioration de la qualité de vie des habitants et des usagers.

Client
Ville d’Argenteuil
Programme
Restructuration lourde de l’ancien parc de stationnement
Architecte
Phasis
Surface
15 000 m2
Budget
3,60 M€
Plans
RDC