Ambassade d’Ouganda

Type
Industriel, Tertiaire & Process
Lieu
Paris (75)
Statut
Livraison 2026

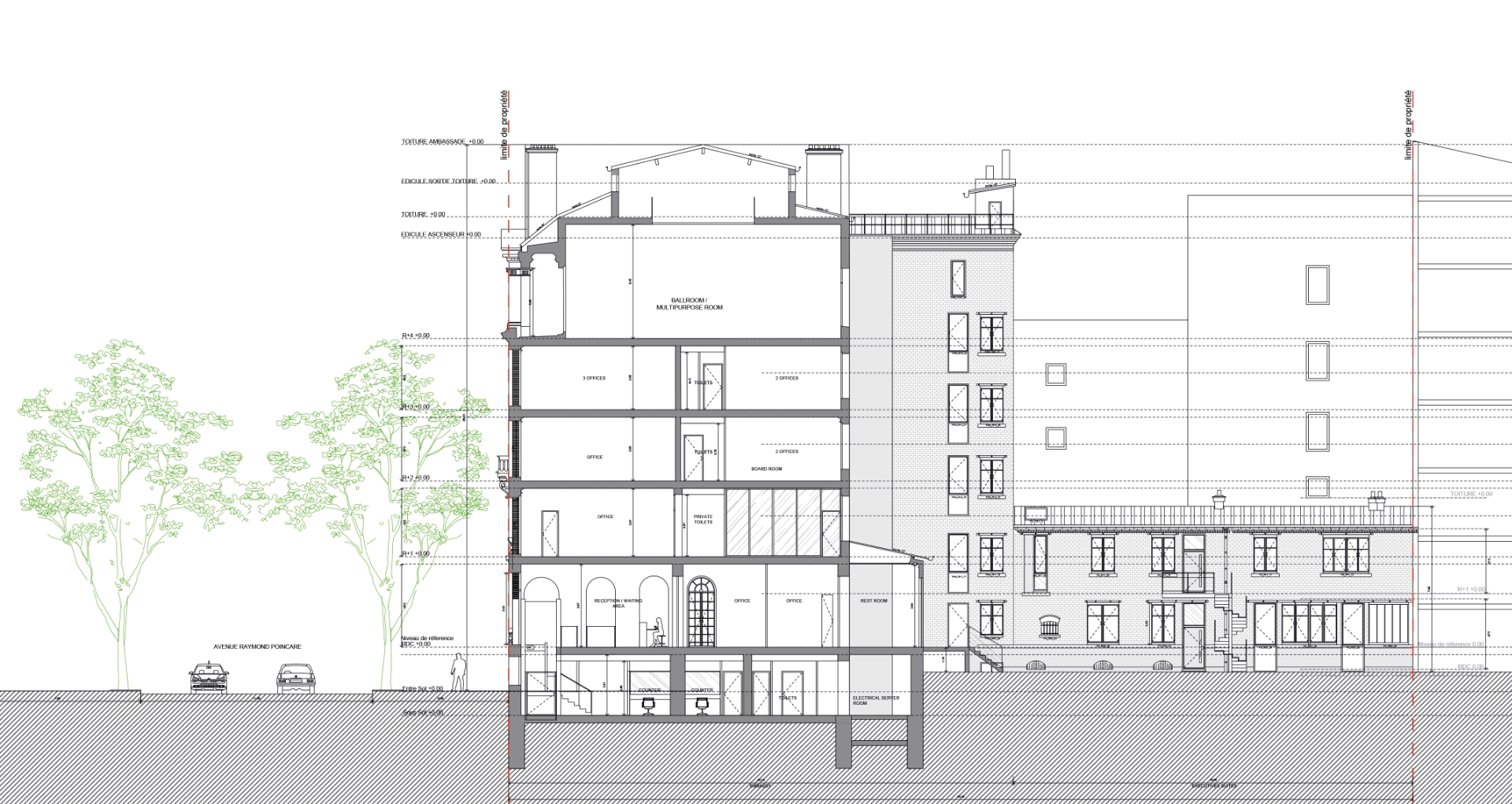
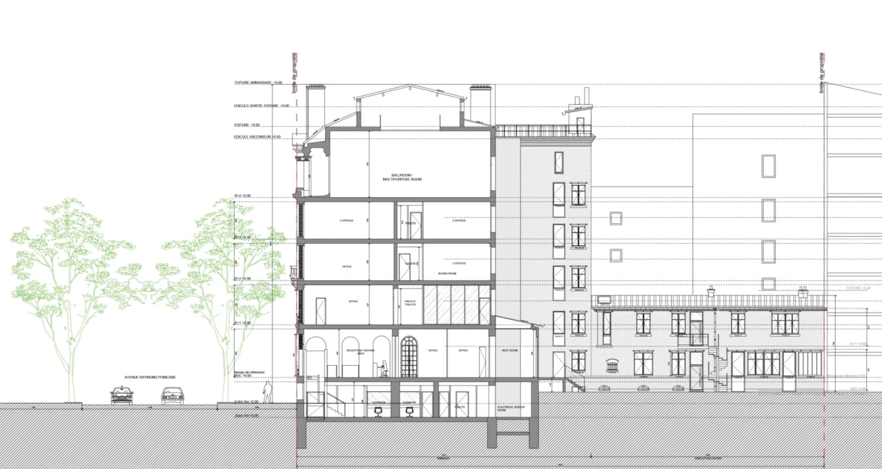
Située aux portes du Trocadéro, l’ambassade d’Ouganda occupe un petit immeuble haussmannien resté proche de son état d’origine. Face aux exigences d’accessibilité et à l’augmentation des flux, le bâtiment fait l’objet d’une restructuration complète.

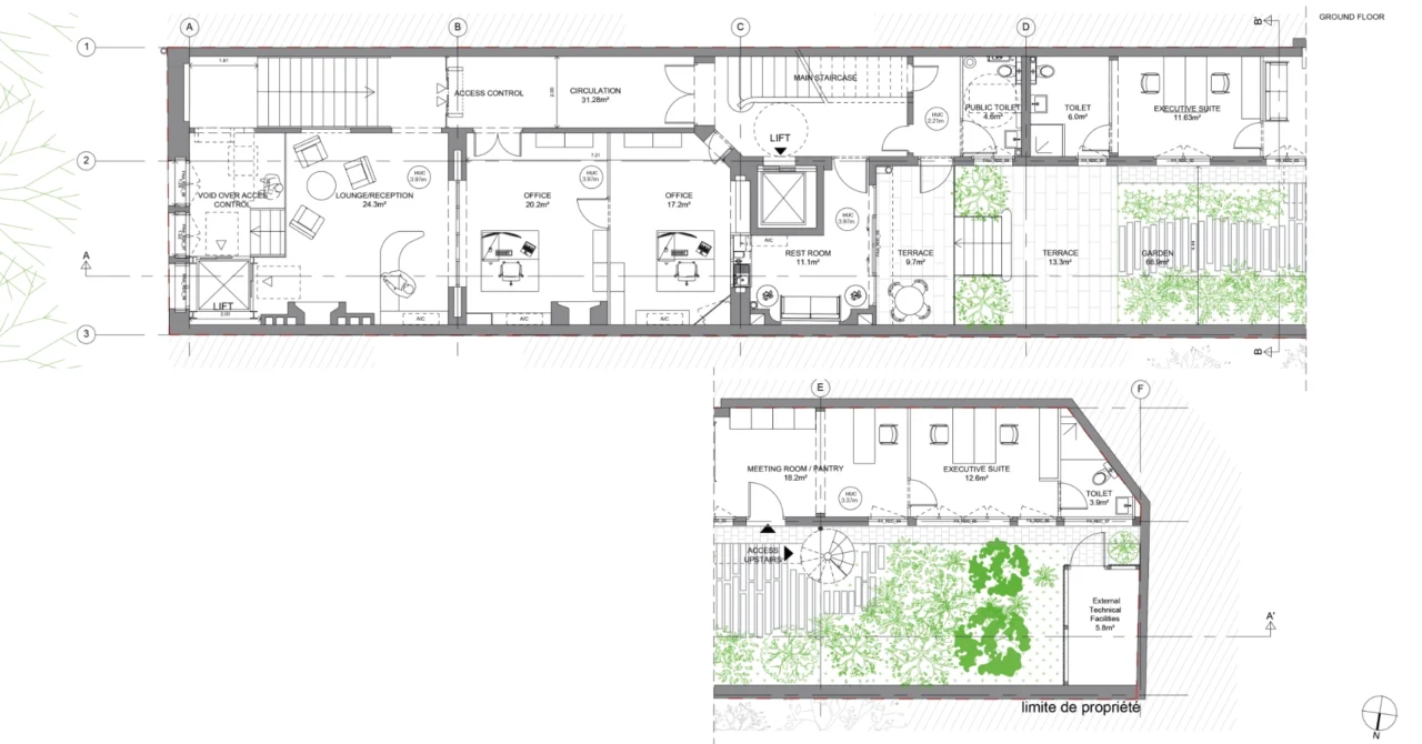
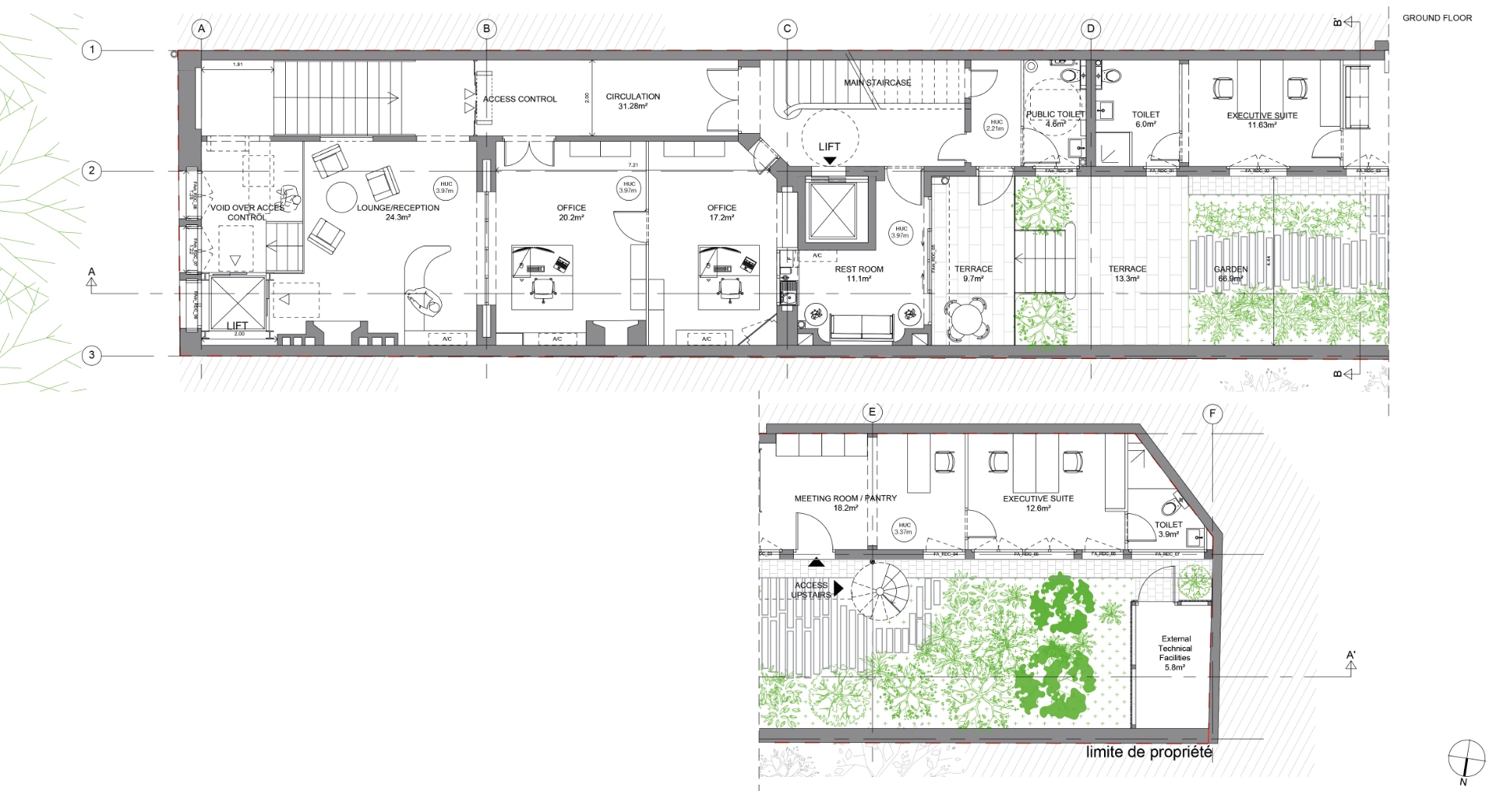
Les circulations verticales sont entièrement remaniées pour optimiser l’accueil et le parcours des visiteurs. Les espaces intérieurs sont repensés dans une mise en lumière généreuse, intégrant des matériaux évoquant l’identité culturelle ougandaise.

Client
République d’Ouganda
Programme
Réhabilitation
Architecte
Alcyone
Surface
850 m²
Budget
2.7 M€
Plans
Master plan
Coupe
RDC