47 logements

Type
Logement
Lieu
Champigny-sur-Marne (94)
Statut
Livraison 2023

Implantée au cœur d’un îlot pavillonnaire composé de vastes maisons, cette opération prend soin de préserver le caractère paisible du quartier. Pour ne pas en altérer l’esprit, la conception s’est orientée vers un front urbain évoquant de grandes maisons de ville, alternant toitures à deux pans et toitures terrasses.
Cette composition, rythmée par des jeux de volumes, se distingue également par la diversité des traitements de façades, de toitures et de garde-corps. La meulière, très présente dans l’environnement, devient l’élément central de la modénature.

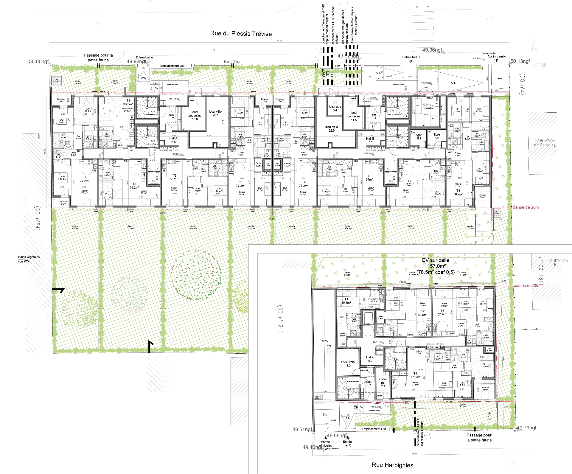
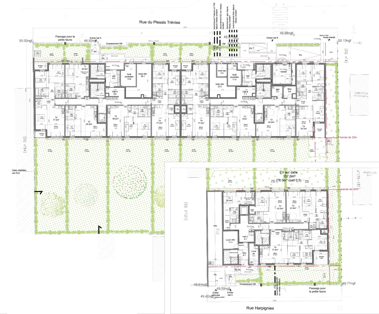
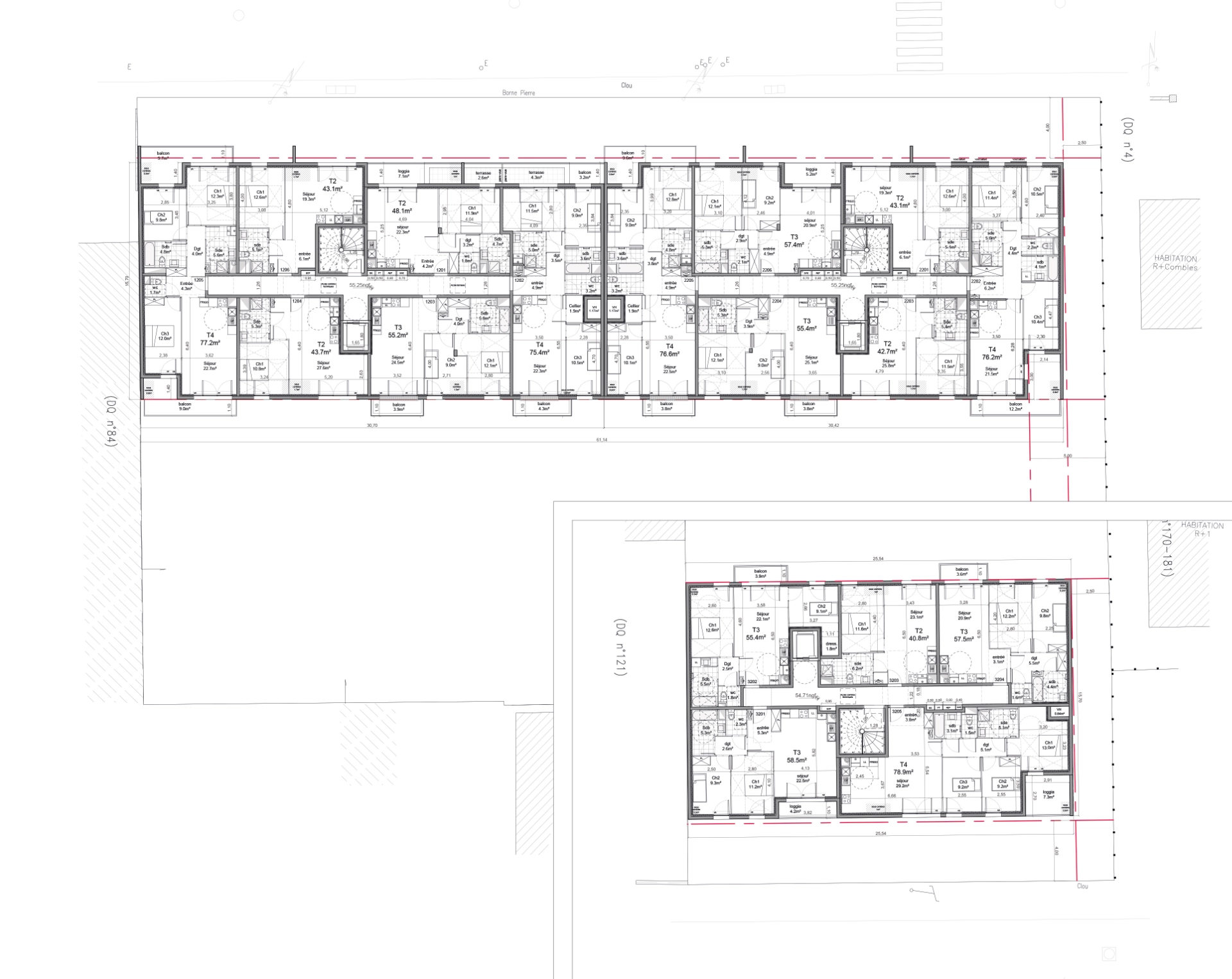
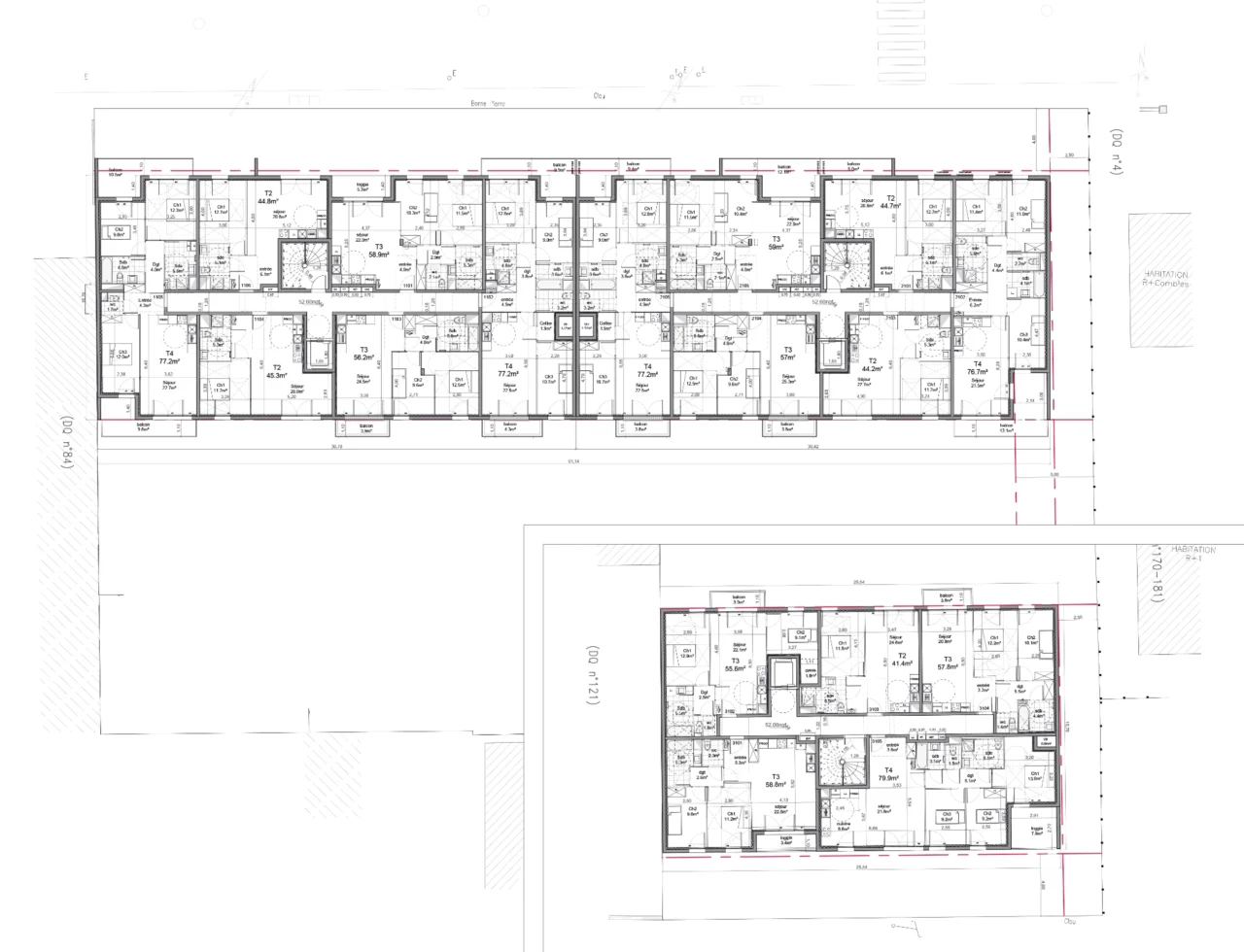
Le projet est composé de trois bâtiment. Deux d'entre eux composent le corps central sur rue. Le troisième est en front intérieur de parcelle, donnant sur une allée secondaire. Totalement indépendant en superstructure, il est relié au deux autres en infra par le biais d'un parking souterrain mutualisé.

Client
Édouard Denis
Programme
47 logements
Architecte
Alcyone
Surface
2 780 m²
Budget
NC
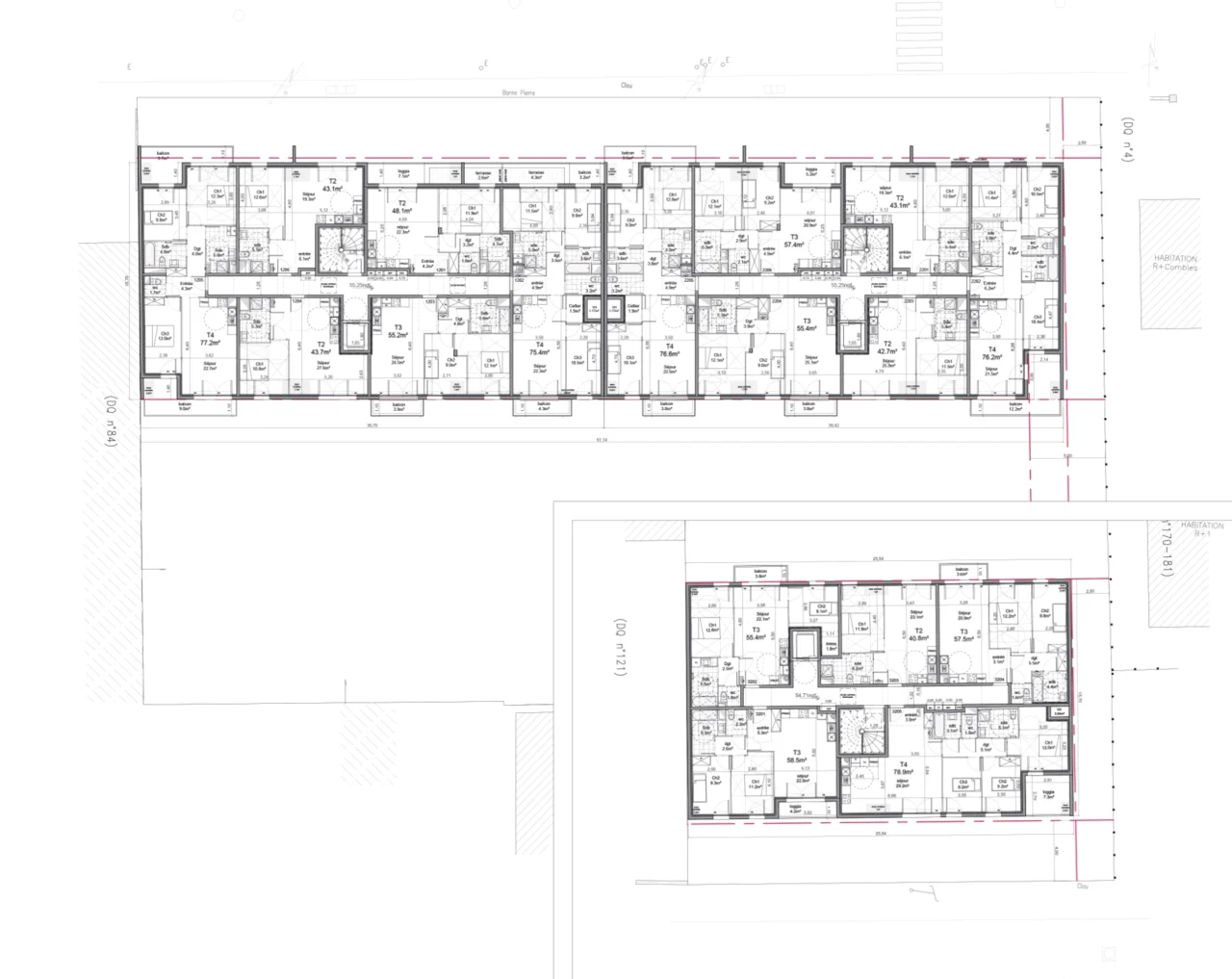
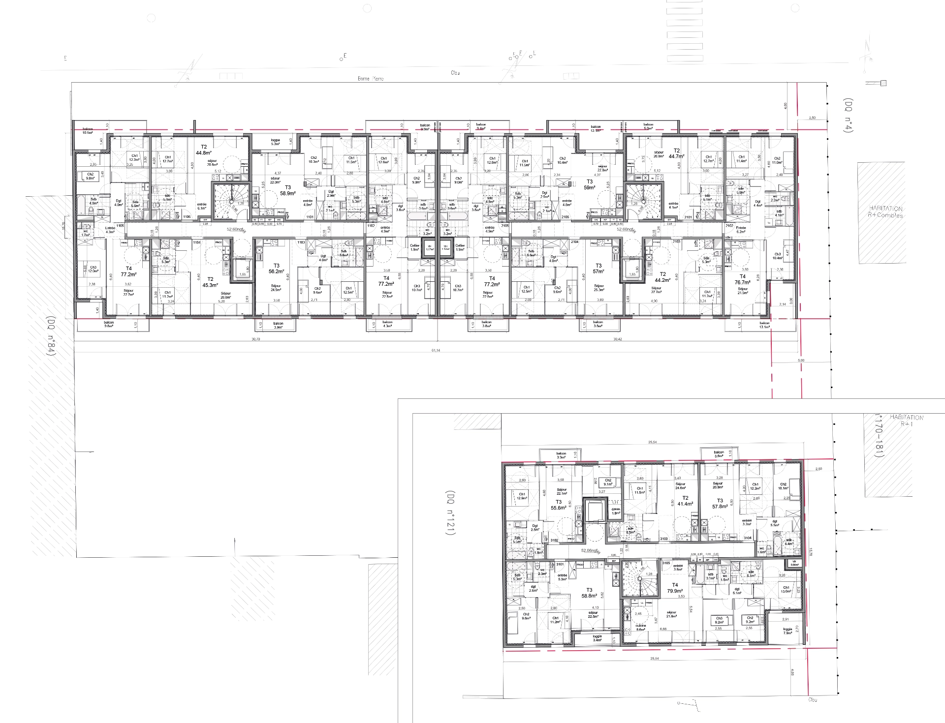
Plans
Plan masse
RDC
R+1
R+2